Właz nierdzewny gilotyna E134N
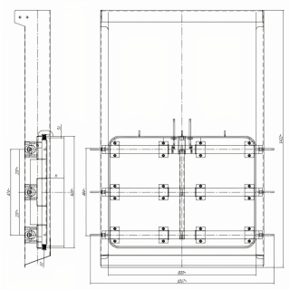
Właz prosotkątny nierdzewny gilotyna E134N to duża i solidna konstrukcja, którą wyposaża się w klapę unoszoną o wymiarach 600x800 mm. Klapę mocuje się w ramie z prowadnicami, które ułatwiają jej unoszenie i opuszczanie. W górnej części włazu znajduje miejsce przeznaczone do instalacji siłownika umożliwiającego unoszenie i opuszczanie pokrywy (siłownik nie znajduje się domyślnie w zestawie).
Właz prostokątny nierdzewny E134N - zastosowanie
Zasuwy (gilotyny) doskonale sprawdzają się w dużych zbiornikach i silosach służących do przechowywania różnego rodzaju materiałów i surowców. Dlatego też głównym obszarem zastosowania dla włazu nierdzewnego gilotyna E134N jest przemysł rolno-spożywczy oraz duże gospodarstwa rolne. Właz tego typu sprawdzi się również doskonale:
- w obszarze przetwórstwa wrzywno-owocowego,
- przy produkcji pasz,
- w innych obszarach produkcji przemysłowej.
Włazów (zasuw) tego rodzaju z dobrym skutkiem używa się również w innych aplikacjach wymagających odporności na korozję, pod warunkiem, że środowisko pracy będzie uwzględniało parametry użytych do konstrukcji włazu materiałów.

Model | H [mm] | S1 [mm] | S2 [mm] | MAX [bar] |
---|---|---|---|---|
E134N | 100 | 10 | 3 | 1.2 |
Parametry techniczne
Seria produktowa | Seria E |
---|---|
Wymiar | XL (dłuższy bok włazu powyżej 700 mm) |
Kształt | Włazy prostokątne |
Typ | Ciśnieniowe |
Wysokość kołnierza (w mm) | 100 mm |
Grubość ścianki kołnierza (w mm) | 10.0 mm |
Sposób otwierania | Zasuwa |
Sposób montażu | w poszyciu (na boku) zbiornika |
Ciśnienie | 0.5 - 2.5 bar |
Podciśnienie | nie dotyczy |
Certyfikat PED | nie |
Rodzaj stali | AISI 304/304L, AISI 316/316L |
Materiał uszczelnienia | EPDM, NBR, Silikon, Viton |
Materiał pokrętła | Brak pokrętła |