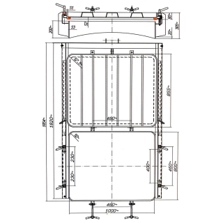
Właz nierdzewny gilotyna E135
Właz nierdzewny gilotyna E135 to bardzo solidna konstrukcja, którą wyposaża się w klapę unoszoną. Zablokowanie klapy w wybranym położeniu umożliwia osiem pokręteł dociskających. Model ten doskonale sprawdza się w dużych zbiornikach i silosach. Zazwyczaj używa się go w silosach służących do przechowywania surowców pochodzenia roślinnego, które następnie wykorzystuje się w procesie produkcji. Dlatego też głównym obszarem zastosowania dla włazu nierdzewnego gilotyna E135 jest przemysł rolno-spożywczy, a także przemysł przetwórstwa warzyw i owoców.
Model E135N - wersja z siłownikiem
Istnieje możliwość budowy włazu (zasuwy) w wersji wyposażonej w siłownik pneumatyczny (właz typu E135N). Zastosowanie siłownika pneumatycznego daje możliwość automatyzacji procesu otwierania i zamykania pokrywy. To z kolei sprawia, że właz (zasuwa) może funkcjonować w urządzeniach i maszynach dozujących surowce masowe w procesach produkcyjnych.
Włazów tego rodzaju z dobrym skutkiem używa się również w innych aplikacjach wymagających odporności na korozję, pod warunkiem, że środowisko pracy będzie uwzględniało parametry użytych do ich konstrukcji materiałów.

Model | H [mm] | S1 [mm] | S2 [mm] | S3 [mm] | MAX [bar] |
---|---|---|---|---|---|
E135 | 200 | 10 | 4 | 8 | 1.2 |
E135N | 100 | 10 | 3 | - | 1.2 |
Parametry techniczne
Seria produktowa | Seria E |
---|---|
Wymiar | XL (dłuższy bok włazu powyżej 700 mm) |
Kształt | Włazy prostokątne |
Typ | Ciśnieniowe |
Wysokość kołnierza (w mm) | 100-200 mm |
Grubość ścianki kołnierza (w mm) | 10.0 mm |
Sposób otwierania | Zasuwa |
Sposób montażu | w poszyciu (na boku) zbiornika |
Ciśnienie | 0.5 - 2.5 bar |
Podciśnienie | nie dotyczy |
Certyfikat PED | nie |
Rodzaj stali | AISI 304/304L, AISI 316/316L |
Materiał uszczelnienia | EPDM, Silikon |
Materiał pokrętła | INOX |